Descripción
Loft en venta en Arganda del Rey – Ref. 10.259
Precio: 190.000 € | Superficie construida: 57 m² (útiles: 50 m²)
Dormitorios: 1 | Baños: 2 | Ubicación: Arganda del Rey (Madrid)
Descubre este espectacular loft en venta en Arganda del Rey, una oportunidad ideal para quienes buscan una vivienda moderna, luminosa y bien conectada. Este inmueble tipo dúplex se distribuye en dos plantas y ofrece un diseño funcional y contemporáneo.
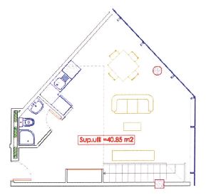
📐 Distribución por planta:
- Planta baja (útil 40,85 m²): zona diáfana con cocina abierta al salón comedor, baño completo y escaleras de acceso.
- Planta alta (útil 16,65 m²): dormitorio con baño en suite, zona abierta al espacio inferior.
🔍 Características principales:
- Superficie construida: 57 m²
- Superficie útil: 50 m²
- Dormitorio: 1
- Baños: 2 (uno en cada planta)
- Tipo de inmueble: Loft dúplex
- Precio de venta: 190.000 €
- Referencia: 10.259
- Ubicación: Arganda del Rey, Madrid
- Estado: Buen estado, listo para entrar a vivir
- Altura: Dúplex con techos altos y grandes ventanales
🏡 Descripción del inmueble:
Este loft destaca por su luminosidad y distribución en dos niveles, ideal para personas solteras, parejas o como inversión. La planta baja cuenta con una cocina abierta, salón-comedor y baño, mientras que la planta alta alberga el dormitorio con baño privado.
El diseño abierto y moderno permite adaptar los espacios según tus necesidades. Se encuentra en un edificio reciente con buenos acabados, en una zona con todos los servicios y buena comunicación por metro y carretera.
⭐ Ventajas destacadas:
- Estilo moderno y funcional
- Distribución tipo dúplex
- Doble altura y gran luminosidad
- 2 baños, uno por planta
- Excelente ubicación en Arganda del Rey
- Ideal como primera vivienda o inversión
📈 Ideal para vivir o alquilar con rentabilidad
Este loft ofrece una excelente relación calidad-precio, perfecto para quienes buscan algo diferente sin salir de la Comunidad de Madrid.
📞 ¿Te interesa este loft en Arganda del Rey?
Contacta con Industrial Escobar para:
- Solicitar visita guiada
- Obtener planos (adjuntos en esta ficha)
- Resolver dudas urbanísticas o hipotecarias
- Recibir asesoría personalizada
🔗 Puedes consultar información urbanística en el Ayuntamiento de Arganda del Rey
📍Datos de contacto Industrial Escobar:
Plaza de Estocolmo S/N, 28500 Arganda del Rey (Madrid)
📧 industrial@industrialescobar.com
📞 910 111 384
🌐 www.industrialescobar.com
- Capital e Intereses
- Impuesto a la Propiedad
- Cuota de mantenimiento (mensual)







