Descripción
Piso en venta en Arganda del Rey – Ref. 30.333
Precio de venta: 285.000 €
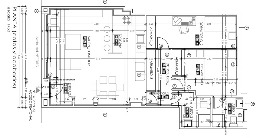
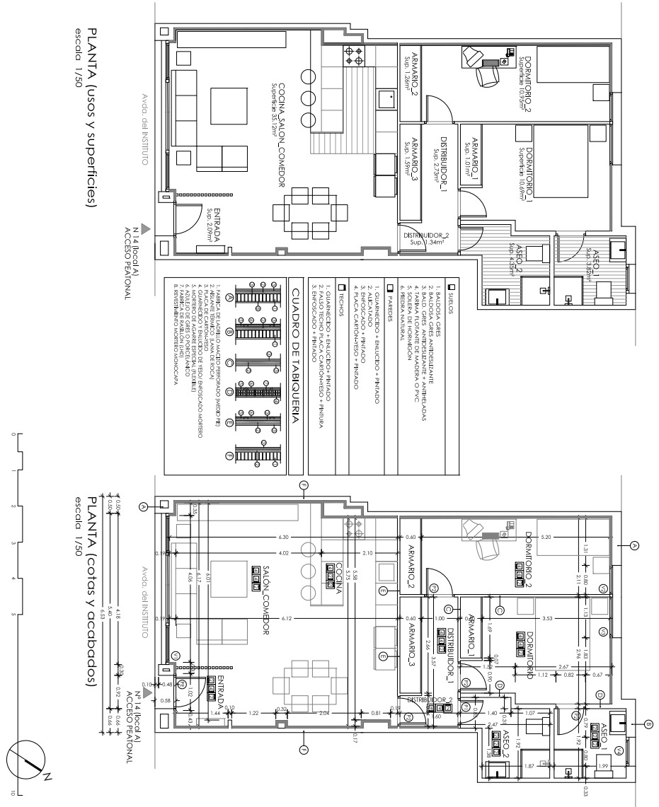
Superficie total: 80 m²
Distribución: Planta baja (vivienda en planta calle)
Dormitorios: 2 | Baños: 2
Se ofrece en venta esta vivienda nueva en planta calle en Arganda del Rey, una opción ideal para quienes buscan comodidad, accesibilidad y una vivienda moderna lista para estrenar.
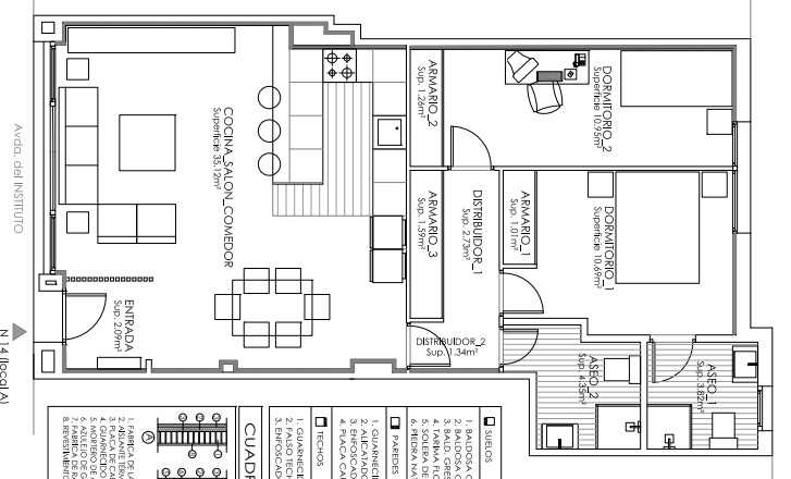
Con 80 m² construidos, esta propiedad destaca por su diseño actual, funcionalidad y facilidad de acceso, perfecta tanto para vivienda habitual como para inversión.
🔍 Características principales
- Superficie total: 80 m²
- Ubicación: planta baja (acceso directo desde calle)
- Tipo de inmueble: Piso
- Dormitorios: 2
- Baños: 2
- Vivienda nueva
- Sin patio
- Sin terraza
- Sin garaje
- Sin trastero
- Referencia: 30.333
- Precio de venta: 285.000 €
🏠 Descripción del inmueble
La vivienda se distribuye en una única planta, lo que aporta una gran comodidad en el día a día. Su acceso directo desde la calle la convierte en una opción muy práctica, sin barreras arquitectónicas.
Cuenta con un salón con cocina integrada o independiente (según distribución), creando un espacio moderno y funcional. Los dos dormitorios ofrecen comodidad tanto para vivienda habitual como para despacho o habitación de invitados.
Dispone de dos baños completos, lo que aporta un valor añadido en cuanto a funcionalidad y confort.
Al tratarse de una vivienda de nueva construcción, ofrece acabados actuales, eficiencia y la ventaja de estrenar inmueble.
⭐ Ventajas destacadas
- Vivienda nueva a estrenar
- Planta calle (máxima accesibilidad)
- 80 m² bien distribuidos
- 2 dormitorios y 2 baños
- Ideal para personas con movilidad reducida
- Perfecta para inversión o vivienda habitual
- Sin necesidad de reformas
📈 Una oportunidad para vivir o invertir
Este piso en planta baja en Arganda del Rey es una excelente oportunidad para quienes buscan una vivienda moderna, accesible y lista para entrar a vivir o rentabilizar.
🔗 Consulta urbanística disponible en la web del Ayuntamiento de Arganda del Rey.
📍 Hogar familiar en Arganda del Rey
Una excelente oportunidad para establecer tu hogar en una de las zonas mejor comunicadas del sureste de Madrid. Lista para entrar a vivir y disfrutar desde el primer día.
Plaza de Estocolmo S/N, 28500 Arganda del Rey (Madrid)
📧 industrial@industrialescobar.com
📞 910 111 384
🌐 www.industrialescobar.com

- Capital e Intereses
- Impuesto a la Propiedad
- Cuota de mantenimiento (mensual)



















